Этот проект принадлежит одному из наших инвесторов. Мы не будем здесь рассказывать все подробности, но вы можете найти его среди объявлений о посуточной аренде в Москве и даже поселиться в одну из студий.
Ремонт под ключ провели за 3 месяца.
Объект взят в ипотеку с первоначальным взносом 15%
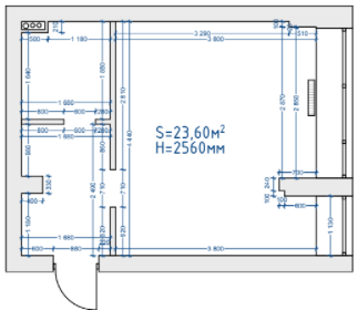
Полные инвестиции в проект составили около 5 000 000 руб.
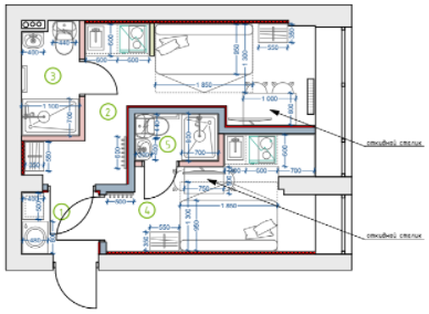
Около 15% в режиме пассивного дохода на аренде или 30-40% при перепродаже.
Свяжитесь с нами. Мы проанализируем ваши возможности и подберём индивидуальное решение. Через пару месяцев вы уже получите в собственность высокодоходный объект недвижимости!